Sauvegarder
print Imprimer
share Partager
À Louer

1 300,00 $

 / Mensuel

300 Rue Manville O. , Val-des-Sources, QC J1T1G9

Quadrex 3 Chambres à coucher 1 Salles de bain 0 Salle de bains partielle

Remarques

À VENIR À DÉBUT 2026 Trois immeubles neufs de six logements chacun, construits en 2025, offriront un style à la fois contemporain et chaleureux. Situés sur la rue Manville Ouest à Val-des-Sources, dans un secteur résidentiel paisible, ces bâtiments proposeront des unités 4½ et 5½. Chaque logement comprend une cuisine spacieuse et fonctionnelle, une salle de bains avec coin buanderie intégré, ainsi qu'un grand balcon arrière donnant accès à la cour. L'entrée est privée pour chaque unité. Les logements sont dotés d'un aspirateur central, d'un échangeur d'air et d'un climatiseur mural pour un confort optimal. Réservez votre visite!

BLOC APPARTEMENT NEUF À VAL-DES-SOURCES

Des Espaces Spacieux et Accueillants

Vous recherchez un appartement neuf dans un environnement calme et verdoyant ? Découvrez ces unités récemment construites à Val-des-Sources, une municipalité en plein développement située au coeur de l'Estrie. Ces unitées modernes, offrant des espaces ouverts, sont parfaits pour ceux qui recherchent une vie confortable dans un cadre paisible.

Des unités spacieuses et lumineuses

Le bloc d'appartements propose des unités de type 5 1/2 et 4 1/2, idéales pour les familles, les couples ou les professionnels. Chaque unité a été pensée pour maximiser l'espace et la lumière naturelle. Les pièces spacieuses et bien agencées permettent une circulation fluide, créant une atmosphère chaleureuse et accueillante. Les salons ouverts et les grandes cuisines modernes offrent une qualité de vie optimale, tandis que les chambres lumineuses offrent un espace intime et confortable pour se détendre.

Une construction neuve, une qualité de vie moderne

Chaque unité offre une haute qualité, avec un fini moderne et une attention particulière aux détails. Vous apprécierez également les balcons privés avec rangement pour profiter de l'extérieur en toute tranquillité.

Un emplacement stratégique

Situé à Val-des-Sources, ce bloc appartements vous permet de profiter de la tranquillité d'un quartier résidentiel tout en étant à proximité des principaux services : écoles, commerces, transports en commun, épiceries et espaces de loisirs. En outre, la ville est bien desservie par la route, avec des distances pratiques vers les grandes agglomérations :

Sherbrooke : 25 km (environ 25 minutes en voiture)

Drummondville : 45 km (environ 40 minutes en voiture)

Montréal : 140 km (environ 1h30 en voiture)

Québec : 230 km (environ 2h30 en voiture)

Une vie sereine et pratique

Que vous soyez à la recherche de votre premier appartement ou que recherciez la tranquilité d'esprit, ce bloc d'appartements neufs à Val-des-Sources offre une qualité de vie incomparable à un prix abordable pour la région. L'emplacement idéal et la construction moderne font de cet ensemble un choix privilégié pour les locataires.

Ne manquez pas cette opportunité de vivre dans un bloc d'appartements neuf à Val-des-Sources. Contactez-nous dès aujourd'hui pour plus d'informations ou pour planifier une visite !

Inclusions : 

Thermopompe murale, échangeur d'air, aspirateur central

Résumé de la propriété

  • Style de bâtiment : Quadrex
  • Largeur du bâtiment 39 Pieds
  • Profondeur du bâtiment 24 Pieds
  • Nbre d'espaces de stationnement : 2
  • Stationnement : Oui
  • Chambres : 3
  • Salle(s) de bains (complète(s)) : 1
  • Salle(s) de bains partielle(s) : 0

Caractéristiques du bâtiment :

  • Murs mitoyens:
    Quadrex
  • Refroidissement:
    Climatiseur mural , Thermopompe murale
  • Caractéristiques de l'extérieur:
    Balcon privé
  • Chauffage:
    Autre
  • Caractéristiques de la buanderie:
    Salle de bains , 1er niveau/RDC
  • Étages:
    À étages
  • Caractéristiques du terrain:
    Garderie/CPE , Plat
  • Autres équipements:
    Échangeur d'air
  • Parking Features:
    Asphalte
  • Animaux permis:
    Chats permis
  • Condition de la propriété:
    Neuve
  • Égout:
    Municipalité
  • Type de structure:
    Appartement
  • Services publics:
    Eau raccordée , Égout raccordé
  • Source d'eau:
    Municipalité

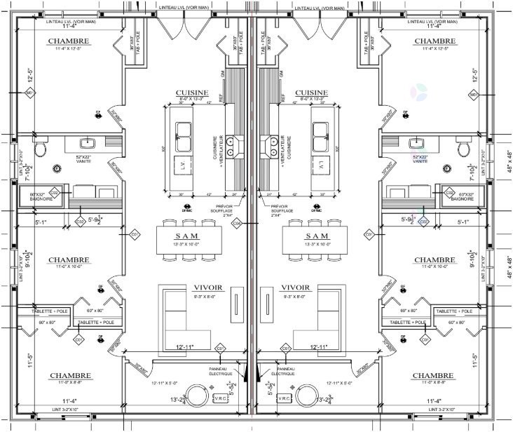
Pièces

  • Chambre principale:
    Niveau : Rez-de-chaussée 3.78 m x 3.45 m
  • Chambre:
    Niveau : Rez-de-chaussée 3.05 m x 3.35 m
  • Chambre:
    Niveau : Rez-de-chaussée 2.64 m x 3.35 m
  • Cuisine:
    Niveau : Rez-de-chaussée 4.04 m x 2.44 m
  • Salle à dîner:
    Niveau : Rez-de-chaussée 3.05 m x 4.04 m
  • Salon:
    Niveau : Rez-de-chaussée 2.44 m x 2.82 m
  • Salle de bains:
    Niveau : Rez-de-chaussée 3.17 m x 2.13 m

Unités à revenue

  • Pièces : 7 Nombre de chambres : 3 Nombre salles de bain : 1 Revenu mensuel potentiel : 0,00 $
Style de vie
Information du quartier
Agent

Martin Savard

Courtier immobilier résidentiel et commercial

Martin Savard Courtier immobilier inc.

Téléphone : 819.565.3000

Téléphone à la maison : 819.565.3000

Télécopieur à la maison : 819.565.3003

Agent

Leslie Tran

Courtier immobilier résidentiel

Téléphone : 819.565.3000

Cellulaire : 819.200.9553

Télécopieur à la maison : 819.565.3003

Obtenir plus de renseignements